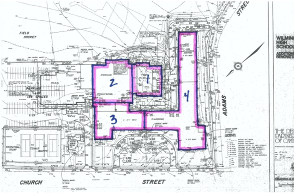
April 1, 2015 Demolition of Old WHS Began Yesterday; Building Will Be Gone By Memorial Day 591 × 389 WHS in 4 Sections The building was divided into four sections. Sections 3 and 4 will be demolished last.